Leave a Message

Thank you for your message. We will be in touch with you shortly.

Explore Our Properties

Property Description

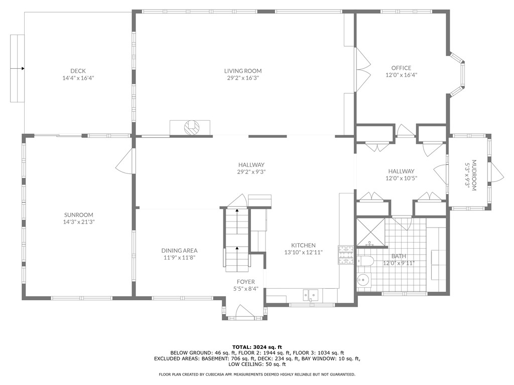
Blending timeless character with modern convenience, this updated historic home lies on two acres within Harmony Village. Surrounded by mature perennials and natural beauty, it's a private haven just minutes from local shops and amenities. Inside, an abundance of natural light fills the open, inviting layout. Hardwood floors, a spacious living room with a wood stove, and a large dining area create a warm and welcoming atmosphere perfect for everyday living and entertaining. Designed for the culinary enthusiast, the kitchen boasts double ovens, stainless steel appliances and a wine fridge. A versatile first-floor den or home office, along with a full bath and laundry, offers flexible living options. Upstairs, the oversized primary suite includes a walk-in closet and ensuite bath. Two additional bedrooms and another full bath complete the second level. The three-season sunroom provides a serene retreat overlooking the private yard and a charming pergola for summer gatherings. Multi-level landscaping adds year-round visual interest, especially as spring brings vibrant color to the grounds. Additional highlights include a detached garage, a large shed/workshop, and numerous thoughtful upgrades newer roof, composite decking, custom blinds, and built-in features. Whether you're seeking serenity, space, or style, this one-of-a-kind home offers it all.

Overview

Property Status
Sold
Lot Size
2.07 Acres
MLS ID
1379515
Property Type
Residential
Year Built
1880

Features & Amenities

Total Area
2,581 Sq.Ft.
Architecture Styles
Colonial
Water Frontage
Walk to Water
Stories
3
Garage Spaces
1.0
Water Source
Well
Lot Features
Wooded
Parking
Detached, Garage
Heat Type
Baseboard, Oil
Air Conditioning
None
Other Interior Features
Bathtub, Skylights, Stall Shower, Tub Shower, Wood Burning Stove
Sewer
Septic Tank
Substructure
Stone
Sales Price
$700,000
Real Estate Tax
$6,416/yr

Downloads

47 Sawmill Road

Schedule a Tour

We would love to help you see this beautiful home! As a full-service brokerage, we can help you tour. Please submit an offer, and answer questions about the buying process.

Enter a valid email

Thank you

for your interest in 47 Sawmill Road, Glocester, RI 02814

back to page
47 Sawmill Road
explore in 3d
47 Sawmill Road
Navigate

I'm Interested In

47 Sawmill Road

or
  • CallMelissa Neveux

    License #RI : RES.0048791 | MA: 1002469

    (401) 683-8925
  • Follow Us on Instagram